Eladó családi ház Nyíregyháza, Oros, 101 500 000 Ft

Leírás

ÚJ ÉPÍTÉSŰ IKERHÁZ ELADÓ NYÍREGYHÁZA–OROSON!
Nyíregyháza kedvelt, folyamatosan fejlődő részén, Oros városrészben kínálunk megvételre egy 112 nm-es, nappali + 3 szobás, modern ikerházat, amely ideális választás családok számára.
Az ingatlan 475 nm-es telken helyezkedik el, nyugodt, kertvárosias környezetben, kiváló megközelíthetőséggel.
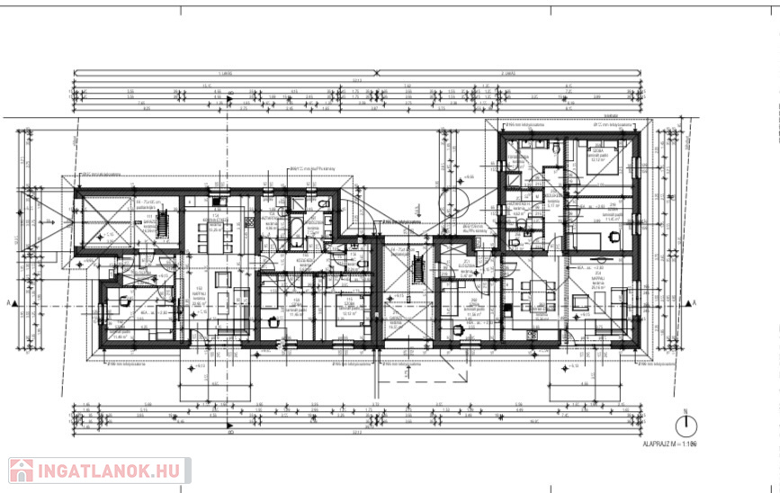
Főbb jellemzők:

95  nm hasznos alapterület + 16,5 nm garázs.
Nappali + 3 külön nyíló szoba
Amerikai konyhás nappali
Tégla falazat, korszerű építési technológia
Hőszivattyús fűtési rendszer (energiahatékony megoldás)
Modern, letisztult kialakítás
Saját kert, ideális családi pihenéshez
Új építés – alacsony fenntartási költségek

Energetikai besorolás: A++
Az ingatlan kivitelezése jelenleg folyamatban van, várható átadás: 2026 év vége, így még lehetőség van bizonyos műszaki tartalom és belső kialakítás egyedi igény szerinti alakítására.
Tökéletes választás mindazok számára, akik egy modern, energiatakarékos otthont keresnek csendes, mégis jól megközelíthető környéken.
További információért és megtekintésért keressen bizalommal. Az ingatlan azonosítója: 100024Érdeklődni: +36304092510 Az ingatlan azonosítója: 100024 Érdeklődni: +36304092510

Családi ház részletei

Ár: 101 500 000 Ft
Méret: 112 négyzetméter
Azonosító: 11608697
Irodai azonosító: 100024
Városrész: Oros
Telek: 475 négyzetméter
Ingatlan állapota: Épülő
Jelleg: családi ház
Építőanyag: Tégla
Fűtés jellege: Geotermikus
Kor: 1-5 éves
Egész szobák: 3