Eladó családi ház Nyíregyháza 81 990 000 Ft

Leírás

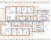
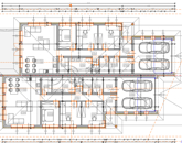
Sóstóhegy egyik legkedveltebb, csendes, aszfaltozott utcájában, kiváló lakóközösségben épül ez a modern, új építésű ikerház, mely kiváló minőséget és kényelmet kínál. A ház 148 m²-es, nappali + 3 szobás kialakítású, nagy terasszal és világos, jól átgondolt belső terekkel. Az ingatlan egy 1400 m²-es telken helyezkedik el, kétállásos, elektromos kapuval ellátott garázzsal, valamint a legmodernebb hőszivattyús fűtésrendszerrel felszerelve. Az épület 15 cm-es hőszigeteléssel, téglából, magas műszaki tartalommal készül, megbízható és profi kivitelezésben.
 
Az ikerház egyik oldala már elkelt, az építkezés pedig jelenleg is folyamatban van. A tervezett átadás időpontja 2026 júniusa, így még van lehetőség egyes belső burkolatok és megoldások kiválasztására is.
 
Ez az otthon ideális választás mindazok számára, akik nyugodt környezetben, mégis a városhoz közel szeretnének energiatakarékos, értékálló és igényes ingatlant.Az ingatlan azonosítója: 98170Érdeklődni: +36303275386 Az ingatlan azonosítója: 98170 Érdeklődni: +36303275386

Családi ház részletei

Ár: 81 990 000 Ft
Méret: 148 négyzetméter
Azonosító: 11590557
Irodai azonosító: 98170
Telek: 1400 négyzetméter
Ingatlan állapota: Épülő
Jelleg: családi ház
Építőanyag: Tégla
Fűtés jellege: Geotermikus
Kor: 1-5 éves
Egész szobák: 3