Eladó családi ház Nyíregyháza, Oros, 91 300 000 Ft

Leírás

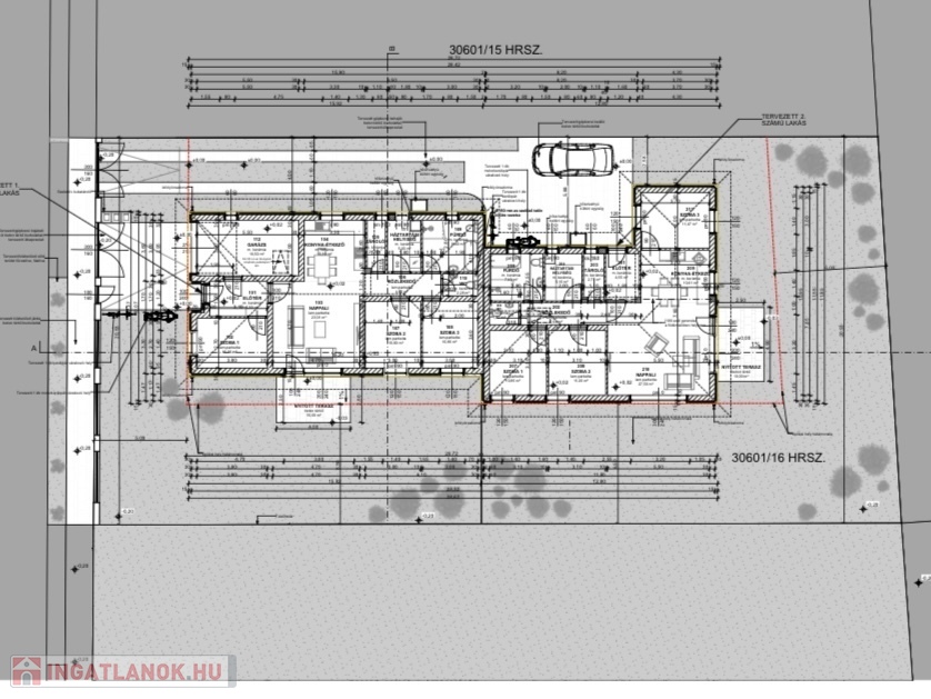
Nyíregyháza-Oros csendes, folyamatosan fejlődő részén, új parcellázású övezetben kínálunk megvételre egy kétlakásos, földszintes ikerház lakásait. 1 Lakás 98,5 M FT : A lakások praktikus elosztásúak: nappali + 3 szoba, saját garázzsal, kertkapcsolattal, 95,05 nm + 16,05 nm-es garázzsal rendelkezik, összessen 112nm-es. 2 Lakás : 91,3 M Ft N + 3 Szoba, garázs nélküli, kertkapcsolattal, 99nm. Főbb jellemzők: modern, kertvárosias környezet minőségi, 30 cm-es falazat + 15 cm hőszigetelés korszerű fűtés: hőszivattyú padlófűtés + radiátoros hőleadás műanyag, hőszigetelt nyílászárók antracit tető és nyílászárók – letisztult megjelenés garázs lakásonként napelem telepítés előkészítve Az ingatlan ideális választás családoknak, akik új építésű, energiatakarékos otthont keresnek nyugodt környezetben. Energetikai besorolás: A++.
További információért és megtekintésért keressen bizalommal.Az ingatlan azonosítója: 100018Érdeklődni: +36304092510 Az ingatlan azonosítója: 100018 Érdeklődni: +36304092510

Családi ház részletei

Ár: 91 300 000 Ft
Méret: 99 négyzetméter
Azonosító: 11608693
Irodai azonosító: 100018
Városrész: Oros
Telek: 400 négyzetméter
Ingatlan állapota: Épülő
Jelleg: családi ház
Építőanyag: Tégla
Fűtés jellege: Geotermikus
Kor: 1-5 éves
Egész szobák: 3