Eladó lakás Nyíregyháza, Belváros, 40 700 000 Ft

Leírás

Nyíregyháza belvárosában eladásra kínálok új építésű, 2026. év végi átadással társasházi lakásokat
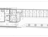
A 7 lakásos társasház Viablokk falazatú, keleti - nyugati fekvésű, csendes, nyugodt környezetben található.
A földszinti lakás: 45 m2 + teraszkapcsolat, 1 szoba + nappalis elosztással. Egyedi gázfűtés, padló fűtés. Ára: 54.900.000 Ft
1/1 lakás: 63,12 m2 + 8,79 m2 terasz, 2 szoba + nappali elrendezésű. Egyedi gázfűtés, padló fűtés. Tároló. Ára: 69.250.000 Ft
1/2 lakás: 29,43 m2, 1 szoba, konyha, gardrób. Egyedi gázfűtés, padló fűtés. Ára: 40.700.000 Ft
1/3 lakás: 62,91 m2, nappali + 2 szoba, tároló, erkély (6,05 m²), terasz (4,05 m²). Egyedi gázfűtés, padló fűtés. Ára: 68.200.000 Ft
2/1 lakás: 60,15 m2, nappali + 2 szoba, + erkély (8,79 m2), tároló, egyedi gázfűtés, padló fűtés. Ára: 66.200.000 Ft
2/2 lakás: 29,43 m2 + 6,55 m2 erkély, 1 szoba, konyha, egyedi gázfűtés, padló fűtés. Ára: 45.170.000 Ft
2/3 lakás:62,91 m2 + 6,36 m2 erkély, 2 szoba + nappali, tároló, egyedi gázfűtés, padló fűtés. Ára: 61.100.000 Ft
A lakások belső kialakítása teljes mértékben a vevő fantáziájára van bízva. (burkolatok, ajtók, színek választhatók)
Garázsok elérhetőek: 9.300.000 Ft + Áfa
Parkolóhelyek elérhetőek: 3.300.000 Ft
Ha felkeltette érdeklődésedet az ingatlanok bármelyike, keressen bizalommal!Az ingatlan azonosítója: 98280Érdeklődni: +3670/328-8474 Az ingatlan azonosítója: 98280 Érdeklődni: +3670/328-8474

Lakás részletei

Ár: 40 700 000 Ft
Méret: 30 négyzetméter
Azonosító: 11576600
Irodai azonosító: 98280
Városrész: Belváros
Emelet: 1. emelet
Építőanyag: Tégla
Fűtés jellege: Cirkó
Ingatlan állapota: Épülő
Építési év: Új építésű
Egész szobák: 1

Egyéb jellemzők

  • Lift