Eladó lakás Nyíregyháza, Belváros, 43 500 000 Ft

Leírás

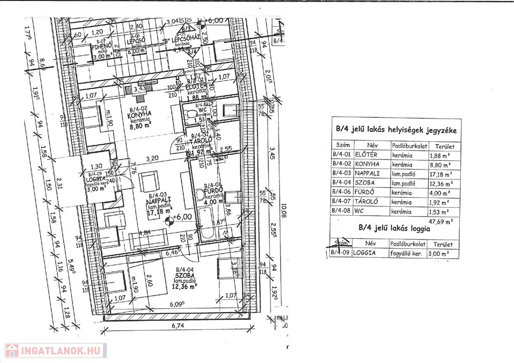
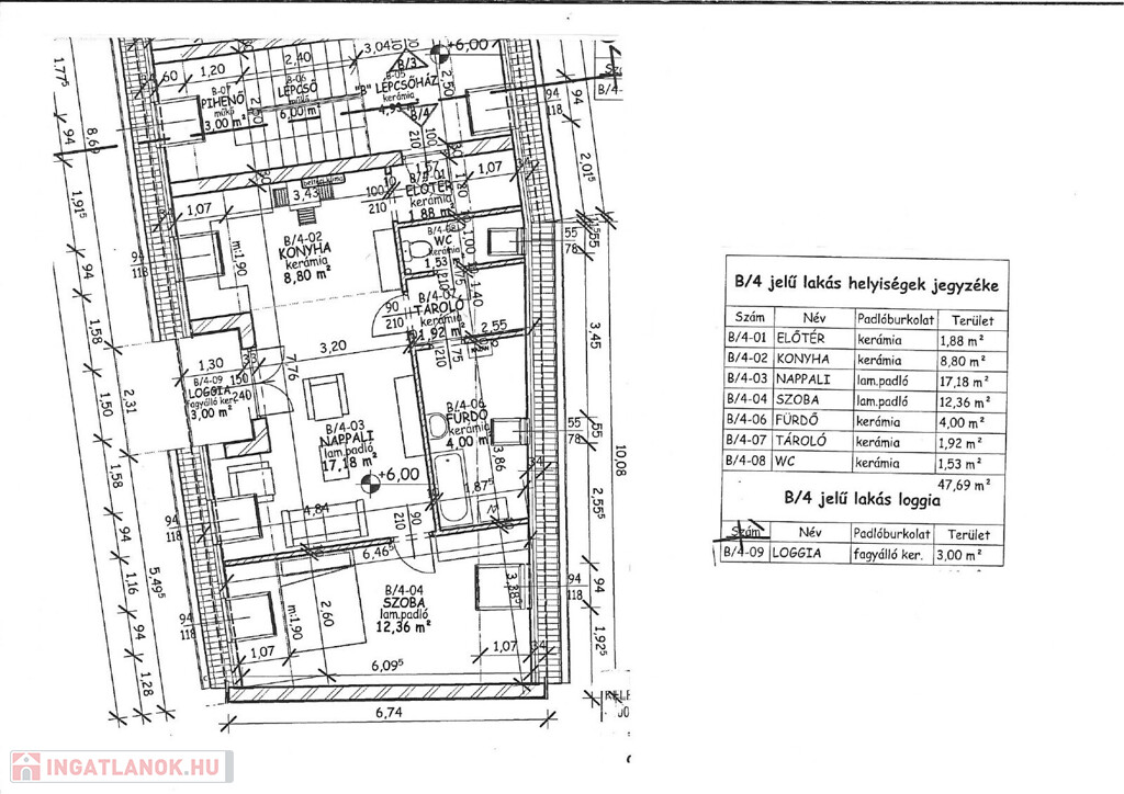
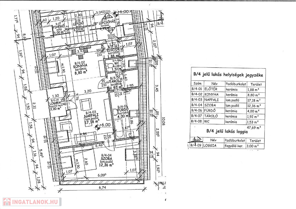
Nyíregyháza Abszolút Belvárosban, MINŐSÉGI KIVITELEZŐTŐL, ÚJ ÉPÍTÉSŰ, 10 lakásos társasházban, 47,69 nm + 3 nm loggia 2. emeleten 43,5Mft-ért, 66,7 nm + 3nm loggia 59,8Mft-ért és egy 75,17 nm + 3 nm loggia 1. emeleti 65,7Mft-ért  lakás, 18,59nm-es garázs9,5Mft-ért, 45,15 nm-es földszinten lévő üzlet, 39,2Mft-ért megvásárolható. Átadása 2025 év vége. Választható minőségi járólap és parketta burkolattal, beltéri ajtókkal szaniterekkel. 3 réteg üvegezésű műanyag nyílászárókkal, egyedi gáz kondenzációs gázkazánnal padlófűtéssel, 3,5 KW-os inverteres klímával. 15 cm homlokzati hőszigeteléssel ellátva, zárt udvaros társasházban.Az ingatlan azonosítója: 97551Érdeklődni: +36702560693 Az ingatlan azonosítója: 97551 Érdeklődni: +36702560693

Lakás részletei

Ár: 43 500 000 Ft
Méret: 48 négyzetméter
Azonosító: 11576518
Irodai azonosító: 97551
Városrész: Belváros
Emelet: 1. emelet
Építőanyag: Tégla
Fűtés jellege: Cirkó
Ingatlan állapota: Épülő
Építési év: Új építésű
Egész szobák: 1

Egyéb jellemzők

  • Lift