Az értékesítő:
Révész Natália
+36 70 944 2086

Eladó családi ház Nyíregyháza, 81 990 000 Ft, 148 négyzetméter

81 990 000 Ft
családi ház, 148 négyzetméter
Építőanyag:
Tégla
Egész szobák:
3
Ingatlan állapota:
Épülő
Azonosító:
11590558
Értékesítés típusa:
eladó
Ingatlan típusa:
családi ház
Jelleg:
Családi ház
Település:
Nyíregyháza
Alapterület:
148
Ár:
81 990 000 Ft
Fűtés jellege:
Geotermikus
Kor:
1-5 éves
Telekterület típusa:
négyzetméter
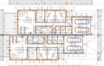
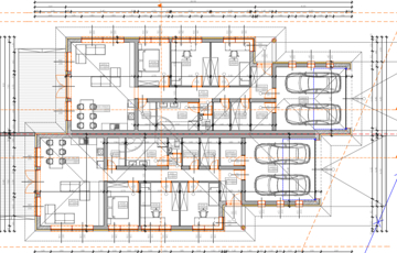
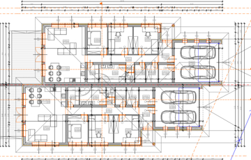
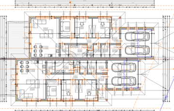
Nyíregyháza Sóstóhegy városrészének egyik aszfaltozott, rendezett utcájában, kiváló lakóközösség szomszédságában épül ez a korszerű, új építésű ikerház, mely 2026 tavaszára készül el. Az ingatlan nettó 148 m²-es, praktikus elrendezésű: tágas nappali és 3 kényelmes hálószoba, nagy méretű terasz, világos, élhető belső terek jellemzik. A ház egy 1400 m²-es telken helyezkedik el, saját, kétállásos garázzsal, elektromos kapuval ellátva. A fűtésről korszerű hőszivattyús rendszer gondoskodik, az épület kiváló hőszigeteléssel (15 cm), téglafalazattal és magas műszaki tartalommal épül, megbízható, tapasztalt kivitelező által. Ez a minőségi otthon ideális választás mindazoknak, akik nyugodt környezetre vágynak, de fontos számukra a város közelsége, az energiatakarékosság és az értékálló befektetés.Az ingatlan azonosítója: 98173Érdeklődni: +36709442086 Az ingatlan azonosítója: 98173 Érdeklődni: +36709442086
https://ingatlanok.hu/elado/haz/nyiregyhaza/82-millio-ft;148-negyzetmeter;3-szoba;geotermikus-futes/11590558