Az értékesítő:
Szabolcsi Zoltán
+36 70 256 0693

Eladó családi ház Nyíregyháza, 110 000 000 Ft, 189 négyzetméter

110 000 000 Ft
családi ház, 189 négyzetméter
Építőanyag:
Tégla
Egész szobák:
3
Ingatlan állapota:
Épülő
Azonosító:
11590706
Értékesítés típusa:
eladó
Ingatlan típusa:
családi ház
Jelleg:
Családi ház
Település:
Nyíregyháza
Alapterület:
189
Telekterület:
500
Ár:
110 000 000 Ft
Fűtés jellege:
Cirkó
Kor:
1-5 éves
Telekterület típusa:
négyzetméter
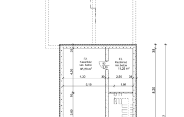
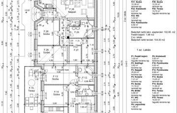
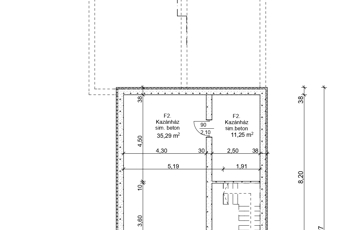
Nyíregyháza Borbányán, ÚJ ÉPÍTÉSŰ, 189 nm összterületű, 3 szoba + tágas nappali étkező konyhával, 19,5 nm-es teraszkapcsolattal, 2 fürdő egyik zuhanyzó másik fürdőkáddal, 3 wc-vel, mosókonyha, kazánház, választható járólap és laminált parketta burkolattal, egyedi gáz padló fűtéssel kondenzációs kazánnal, 3 db inverteres hűtő-fűtő klímával, 3 réteg üvegezésű antracit műanyag nyílászárókkal, 15 cm homlokzati, 30 cm födém 10 cm lépésálló szigeteléssel, 47,5 nm-es Hörmann automata kapuval ellátott garázzsal és mögötte 35 és egy 11 nm-es alaksori helységgel közvetlen feljáróval, ami saját igényeinek megfelelően kialakítható. Részben tér burkolva és épített kerítéssel ikerház, 500 nm-es telken eladó. Kulcsátadás 2026 tavasza. Energetikai besorolás A+Az ingatlan azonosítója: 99167Érdeklődni: +36702560693 Az ingatlan azonosítója: 99167 Érdeklődni: +36702560693
https://ingatlanok.hu/elado/haz/nyiregyhaza/110-millio-ft;189-negyzetmeter;3-szoba;cirko-futes/11590706