Az értékesítő:
Tokodi Ildikó
+36 30 327 5386

Eladó családi ház Nyíregyháza, 81 990 000 Ft, 148 négyzetméter

81 990 000 Ft
családi ház, 148 négyzetméter
Építőanyag:
Tégla
Egész szobák:
3
Ingatlan állapota:
Épülő
Azonosító:
11590720
Értékesítés típusa:
eladó
Ingatlan típusa:
családi ház
Jelleg:
Családi ház
Település:
Nyíregyháza
Alapterület:
148
Ár:
81 990 000 Ft
Fűtés jellege:
Geotermikus
Kor:
1-5 éves
Telekterület típusa:
négyzetméter
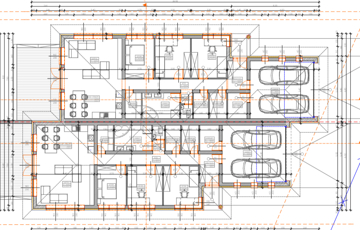
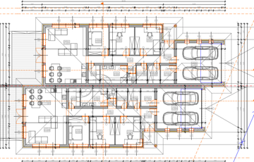
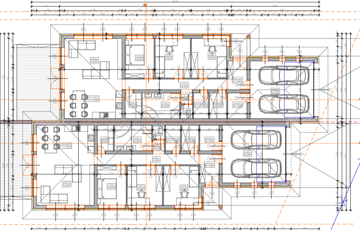
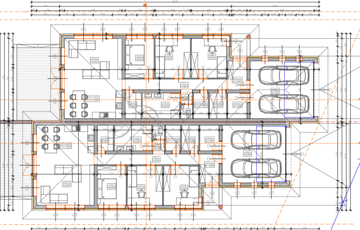
AZ IKERHÁZ EGYIK OLDALA MÁR ELKELT, az építkezés pedig jelenleg is folyamatban van. A tervezett átadás időpontja 2026 júniusa, így még van lehetőség egyes belső burkolatok és megoldások kiválasztására is. Sóstóhegy egyik legkedveltebb, csendes, aszfaltozott utcájában, kiváló lakóközösségben épül ez a modern, új építésű ikerház, mely kiváló minőséget és kényelmet kínál. A ház 148 m²-es, nappali + 3 szobás kialakítású, nagy terasszal és világos, jól átgondolt belső terekkel. Az ingatlan egy 1400 m²-es telken helyezkedik el, kétállásos, elektromos kapuval ellátott garázzsal, valamint a legmodernebb hőszivattyús fűtésrendszerrel felszerelve. Az épület 15 cm-es hőszigeteléssel, téglából, magas műszaki tartalommal készül, megbízható és profi kivitelezésben Ez az otthon ideális választás mindazok számára, akik nyugodt környezetben, mégis a városhoz közel szeretnének energiatakarékos, értékálló és igényes ingatlant. Energetikai besorolása: A+Az ingatlan azonosítója: 99227Érdeklődni: +36303275386 Az ingatlan azonosítója: 99227 Érdeklődni: +36303275386
https://ingatlanok.hu/elado/haz/nyiregyhaza/82-millio-ft;148-negyzetmeter;3-szoba;geotermikus-futes/11590720