Az értékesítő:
Szabolcsi Zoltán
+36 70 256 0693

Eladó családi ház Nyíregyháza, 110 000 000 Ft, 142 négyzetméter

110 000 000 Ft
családi ház, 142 négyzetméter
Építőanyag:
Tégla
Egész szobák:
3
Ingatlan állapota:
Épülő
Azonosító:
11593652
Értékesítés típusa:
eladó
Ingatlan típusa:
családi ház
Jelleg:
Családi ház
Település:
Nyíregyháza
Alapterület:
142
Telekterület:
800
Ár:
110 000 000 Ft
Fűtés jellege:
Cirkó
Kor:
1-5 éves
Telekterület típusa:
négyzetméter
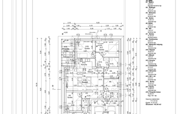
Nyíregyháza Borbánya központi részén, ÚJ ÉPÍTÉSŰ, MINŐSÉGI, 142nm összterületű, Porotherm téglaépítésű, 3 szoba + tágas nappali étkező konyha egy légtérben teraszkapcsolattal, fürdő, 2 wc, háztartási helység és kamra. Választható járólap és laminált padló burkolattal, egyedi gáz padló fűtéssel és 2db inverteres hűtő fűtő klímával, 3 réteg üvegezésű műanyag nyílászárókkal. 15 cm homlokzati, 30 cm födém és 10 cm aljzatszigeteléssel, 32 nm-es automata szekcionált kapuval ellátott garázzsal, 800 nm-es telken kulcsrakészen, nyár végi átadással családi ház eladó. Energetikai besorolás A+Az ingatlan azonosítója: 99491Érdeklődni: +36702560693 Az ingatlan azonosítója: 99491 Érdeklődni: +36702560693
https://ingatlanok.hu/elado/haz/nyiregyhaza/110-millio-ft;142-negyzetmeter;3-szoba;cirko-futes/11593652