Az értékesítő:
Tokodi Ildikó
+36 30 327 5386

Eladó családi ház Nyírtelek, 66 000 000 Ft, 85 négyzetméter

66 000 000 Ft
családi ház, 85 négyzetméter
Építőanyag:
Tégla
Egész szobák:
3
Ingatlan állapota:
Épülő
Azonosító:
11600830
Értékesítés típusa:
eladó
Ingatlan típusa:
családi ház
Jelleg:
Családi ház
Település:
Nyírtelek
Alapterület:
85
Telekterület:
1300
Ár:
66 000 000 Ft
Fűtés jellege:
Geotermikus
Kor:
1-5 éves
Telekterület típusa:
négyzetméter
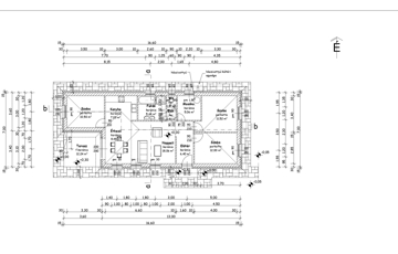
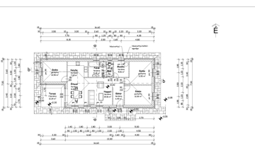
Nyírtelek központjához közel eladó egy 2026 nyarán átadásra kerülő, új építésű, nettó 85 nm-es, önálló családi ház, tágas, 1300 nm-es telken. Az ingatlan praktikus elrendezésű: három külön nyíló szoba és egy világos, teraszkapcsolatos nappali biztosít kényelmes életteret, a fürdőszoba mellett pedig két különálló mellékhelyiség is kialakításra kerül. A modern műszaki tartalom garantálja az energiatakarékos fenntartást és a komfortos mindennapokat. A fűtésről korszerű hőszivattyús padlófűtés gondoskodik. A 3 rétegű üvegezésű műanyag nyílászárók, a 15 cm-es homlokzati szigetelés, a 30 cm-es födémszigetelés és a 10 cm-es lépésálló aljzatszigetelés kiváló hőtechnikai adottságokat biztosítanak. Az otthon burkolatai – járólap és laminált parketta – igény szerint választhatók, így leendő tulajdonosa saját ízlésére formálhatja a belső tereket. Ha egy korszerű, jól átgondolt elrendezésű, önálló családi házat keres Nyírtelek frekventált részén, amely hosszú távon is értékálló befektetés, ez az ingatlan kiváló választás lehet.Az ingatlan azonosítója: 99827Érdeklődni: +36303275386 Az ingatlan azonosítója: 99827 Érdeklődni: +36303275386
https://ingatlanok.hu/elado/haz/nyirtelek/66-millio-ft;85-negyzetmeter;3-szoba;geotermikus-futes/11600830